產品特性: 直接作用型自力式壓力(差壓)調節閥,由閥體、閥座、閥芯部件等零部件組成,是一種無需外來能源而只依靠被調介質自身的壓力變化進行自動調節壓力的節能型產品,可用于非腐蝕性(最高溫度350℃)的液體、氣體和蒸汽等介質的壓力控制裝置。廣泛適用于石油、化工、冶金、輕工等工業部門及城市供熱、供暖系統。
詳細介紹:
◆型號、規格
|
類別 |
壓力控制調節閥 |
差壓控制調節閥 |
|
閥后壓力調節閥 |
閥前壓力調節閥 |
差壓上升閥關閉 |
差壓上升閥開啟 |
|
硬密封 |
軟密封 |
硬密封 |
軟密封 |
硬密封 |
軟密封 |
硬密封 |
軟密封 |
|
型號 |
V230 D01 |
V230D01 |
V230D02 |
V231D02 |
V230D03 |
V231D03 |
V230D04 |
V231D04 |
|
規格 |
DN15-250 | |
|
公稱通徑 mm |
15 |
20 |
25 |
32 |
40 |
50 |
65 |
80 |
100 |
125 |
150 |
200 |
250 |
|
額定流量系數 Kvs |
3.2 |
5 |
8 |
12.5 |
20 |
32 |
50 |
80 |
125 |
160 |
320 |
450 |
630 |
|
公稱壓力 MPa |
1.6 ; 4.0 |
|
Z 值 |
0.6 |
0.6 |
0.6 |
0.55 |
0.55 |
0.5 |
0.5 |
0.45 |
0.4 |
0.35 |
0.3 |
0.2 |
0.2 |
|
最高工作溫度℃ |
V230 V231 |
液體≤ 140 ;氣體≤ 80 |
|
硬密封 V230 |
配隔離罐≤ 200 |
配隔離罐和加長件≤ 300* |
|
配隔離罐和散熱片≤ 200 |
|
壓力平衡元件 |
波紋管 |
滾動膜片 |
|
法 蘭 標 準 |
DIA (亦可按用戶要求提供法蘭標準) |
|
閥 體 材 質 |
PN16 :鑄鐵(工作溫度≤ 200 ℃);
PN4.0 :鑄鋼、鑄不銹鋼(工作溫度≤ 350 ℃) |
|
閥 芯 材 質 |
不銹鋼;軟密封為不銹鋼鑲嵌橡膠圈 |
|
最高工作壓力 MPa |
公稱壓力(注意△ Pmax 及工作壓力與工作溫度的關系) | 注: 1、液體>140℃、氣體>80 ℃時閥倒裝; 2、Z值:噪音衡量系數,該值用來衡量噪音大小,具體計算詳見自力式調節閥選擇指南。
|
|
|
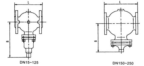
◆外形尺寸
 ◆V230/V231控制閥尺寸及重量
|
公稱通徑 mm |
20 |
25 |
32 |
40 |
50 |
65 |
80 |
100 |
125 |
150 |
200 |
250 |
|
L mm |
150 |
160 |
180 |
200 |
230 |
290 |
310 |
350 |
400 |
480 |
600 |
730 |
|
B mm |
212 |
238 |
238 |
240 |
240 |
275 |
275 |
380 |
380 |
295 |
325 |
372 |
|
大約重量 kg |
6.7 |
9.7 |
13 |
14 |
17 |
29 |
33 |
60 |
70 |
80 |
140 |
220 | ◆D02(D04)執行器尺寸及重量
|
有效面積 cm 2 |
32 |
80 |
250 |
630 |
|
D mm |
172 |
172 |
263 |
380 |
|
H mm |
435 |
430 |
470 |
520 |
|
大約重量 kg |
7.5 |
7.5 |
13 |
28 |  ◆D01(D03)執行器尺寸及重量
|
有效面積 cm 2 |
32 |
80 |
250 |
630 |
|
D mm |
172 |
172 |
263 |
380 |
|
H mm |
440 |
435 |
440 |
520 |
|
大約重量 kg |
7.5 |
7.5 |
13 |
28 | 注:直接作用式自力式閥的總高及總重為控制閥與執行器高度及 重量之和。 | |
中國.上玉集團有限公司是專業生產自控閥的廠家,自力式調節閥訂貨須知:
一、①自力式調節閥產品名稱與型號②自力式調節閥口徑③自力式調節閥是否帶附件以便我們的為您正確選型。
二、若已經由設計單位選定的自力式調節閥型號,請按自力式調節閥型號直接向我公司銷售部訂購。
三、當使用的場合非常重要或環境比較復雜時,請您盡量提供設計圖紙和詳細參數,由我們上玉集團的專家為您審核把關。
感謝您訪問上玉集團公司網站,如有任何疑問您可以撥打我們的全國熱線電話:400-887-6587,我們一定會盡心盡力為您提供優質的服務。