產品關鍵字:直流式襯氟截止閥,襯氟截止閥,直流式截止閥,截止閥
J45Fs直流式襯氟截止閥的啟閉件是塞形的閥瓣,密封面呈平面或錐面,閥瓣沿流體的中心線作直線運動。閥桿的運動形式,有升降桿式(閥桿升降,手輪不升降),也有升降旋轉桿式(手輪與閥桿一起旋轉升降,螺母設在閥體上)。截止閥只適用于全開和全關,不允許作調節和節流。
產品用途
J45Fs直流式襯氟截止閥適用在負五十攝氏度到一百五十攝氏度的各種濃度的王水、流酸、鹽酸、氫氟酸和各種有機酸、強酸、強氧化劑,還適用于各種濃度的強堿有機溶劑以及其它腐蝕性氣體,液體介質的管路上使用。
設計與制造:GB12235
結構長度:GB12221(1系列)
法蘭連接尺寸:GB4216、JB78
J45Fs直流式襯氟截止閥專用于控制腐蝕性或強腐蝕性介質,閥體內腔表面覆有可供選擇的各種氟塑料,適用于不同工作溫度和流體管路,具有強度高、耐腐蝕性能好的特點。
適用溫度:≤80℃ ≤100℃、≤120℃
≤150℃(按照襯里材料)
材料:
閥 體:鑄鐵、碳鋼、不銹鋼
閥 蓋:鑄鐵、碳鋼、不銹鋼
襯 里:氟塑料
閥 瓣:碳鋼、不銹鋼,完全包覆氟塑料
閥 桿:碳鋼、不銹鋼,部分包覆氟塑料
電動裝置:組合件
壓力等級:
0.6 1.0 1.6
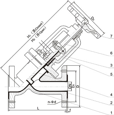
部件列表: 1.閥體 2.閥體襯里 3.閥蓋 4.閥瓣 5.壓蓋子 6.閥桿 7.手輪

中國.上玉集團有限公司是專業生產襯氟閥門的廠家,直流式襯氟截止閥訂貨須知:
一、①直流式襯氟截止閥產品名稱與型號②直流式襯氟截止閥口徑③直流式襯氟截止閥是否帶附件以便我們的為您正確選型。
二、若已經由設計單位選定的直流式襯氟截止閥型號,請按直流式襯氟截止閥型號直接向我公司銷售部訂購。
三、當使用的場合非常重要或環境比較復雜時,請您盡量提供設計圖紙和詳細參數,由我們上玉集團的專家為您審核把關。
感謝您訪問上玉集團公司網站,如有任何疑問您可以撥打我們的全國熱線電話:400-887-6587,我們一定會盡心盡力為您提供優質的服務。
2022/12/13
法蘭襯氟蝶閥的型號字母代表什么意思,襯氟閥門的型號含義2022/11/7
襯氟閥門和襯膠閥門有哪些區別(都是什么材質的)2022/5/5
襯氟閥門是什么(有哪些功能作用,應該如何使用)2021/5/17
襯氟閥門產品優缺點,襯氟閥門優點說明書2021/5/11
襯氟閥門使用說明與安裝注意事項2014/8/25
襯氟閥門選型2012/11/7
上玉集團有限公司專業生產襯氟閥門產品總匯2012/3/31
襯氟閥門知識你了解多少2012/3/31
襯氟閥門廠家供應商上玉集團2012/3/30
襯氟閥門-不要看-無可讀性